サクラリビング ホーム > 施工事例 > 施工事例17
















































 
 
 
REFORM DATA
●所在地

神奈川県相模原

●構造 マンション
●工期 45日 ●築年数 25年
●リフォーム費用 550万円 ●工事面積 68u
●工事内容 リノベーション工事    
 
REFORM PRAN

Before

After
 
 
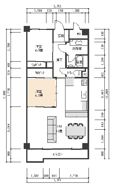
和室と洋室の位置変更で使い易いリビングへ・・・
Before
After
二重サッシで結露や断熱効果を向上!
築25年のマンションは老朽化で全て交換するリノベーション工事をしました。元々掃き出し窓の所にあった和室がリビングの機能を低下させていた為、部屋の位置の変更をご提案しました。そこで和室にするのではなく洋室にして開口間口の広い建具を設置。開放時はリビングが洋室部分まで繋がる広いスペースを作り出す事ができました。配色は白を茶を基調とした高級感あるリビングになりました。結露防止、断熱効果、遮音性能を持つ2重サッシ設置もエコなポイントです。
施工風景
 
 
通気性、開放感・・・独立した洋室は自在に機能を変化させるスペースへ・・・
Before
After
古い家具は再生させました!
リビングルームの施工写真です。洋室は間仕切り扉の使い方によって機能性を変化させます。開放時は広いリビングのスペースへ。閉めた時は独立した洋室へと扉の使い方によって機能が変化します。洋室の収納は1.5間と広くデットスペースを作らない3枚シンクロ扉を設置。扉の手前まで物を置いてもクローゼットが使えます。以前から使用していて老朽化した作りつけ家具はダイノックシートと塗装で新品同様に生まれ変わりました。床材はハイクッションのフェルトを使用してカーペットの下地の硬さを感じない床に仕上ました。
施工風景
 
 
キッチンはシステムキッチンへ・・・
カップボード、カウンターで収納力が向上!
Before
After
ダストボックス収納を設置。
システムキッチンを交換しました。水廻りという事で耐水性の機能を持つ床材を張りました。キッチンは2550タイプを設置。ご夫婦二人暮らしなので同じ面材のカップボードも設置しました。作業スペースを確保するために吊り戸棚の下に水切り台をオプションで設置して使い易いキッチンになりました。対面カウンターは懐を広く取りダストボックスなどが収納できるように造作しました。カウンターの天板も広く取れている為、使い易いキッチンスペースになりました。
施工風景
 
 
魔法瓶浴槽でエコ生活!高級感ある浴室へ・・・
Before
After
魔法瓶浴槽でエコにも配慮しました。
ユニットバスの交換をしました。既存のユニットバスは老朽化もあり交換しました。ショールームで細かい打ち合わせをしていたので理想のバスルームになりました。魔法瓶浴槽を導入した為、6時間経過しても温度低下が−2℃と時間差があっても追い炊きなしで入れます。光熱費節約などさまざまなエコ効果を発揮します。元々追い炊き機能がなかったマンションでしたが、理事会の方々のご協力でこのマンション初の追い炊き付給湯器が導入できました。
施工風景
 
 
配置交換で洗面所は格段に使い易くなりました。
Before
After
洗面台の出幅を抑えて広々脱衣所に。
洗面所の工事写真です。元々の洗面台はカウンター式で奥行きいっぱいまでカウンターを設置し、洗濯機は奥のスペースに無理やり押し込む配置となっていました。洗面化粧台はキャビネットタイプの物に変更し、その横にドラム式洗濯機が設置できる洗濯機パンを設置して一面で洗面台、洗濯機を収納。脱衣所スペースが格段に広くなりました。柱型から大きくはみ出したカウンターもリモデルタイプの奥行きを抑えた化粧台に変更。機能性も見栄えもすっきりしました。
施工風景
 
 
ショールームでこだわった便器はやはり超高性能な便器でした・・・
Before
After
こだわりの便器は超高性能!
便器の交換をしました。ショールームで各社の便器を見て回り、お客様が一目惚れした便器を設置しました。マンション特有の壁排水だった為、この商品の排水芯と既存の排水芯が合わなく断念しそうになりましたが、やはり一目惚れした便器なのでお施主様もなかなか諦め切れませんでした。そこで排水芯調整の為、床の高さが300o高くなってしまう事をご了解して頂き導入することができました。全自動で掃除の為タンクがボタンひとつで上昇するのに感動してしまいました。
   
 
 
25年経っていたって、
弊社は新築マンション並みに再生することができるんです。
   
 
 
【 担当者 大塚 祐史 】
 
●リフォームプランナーより
今後の生活を考えて、リフォームの提案をしてほしいと依頼されました。部屋としての機能を独立した部屋、リビングの一スペースとして利用する部屋にしたことでリビングが広く使えるなどさまざまな工夫をさせて頂きました。エコにも配慮したので現代の住宅機能をもったマンションへと生まれ変わりました。
 
 
▲ ページの先頭に戻る
ホーム 会社案内施工事例リフォームメニューイベント情報無料お見積りお問い合わせ資料請求プライバシーポリシーサイトマップ